Skip to main navigation Skip to main content Skip to page footer

Projekt des Monats: Wohnbauforschungsprojekte zu Sanierungen

Die thermisch energetische Sanierung des Gebäudebestands ist eine Kernherausforderung, um die von der Bundesregierung gesteckten Klimaschutzziele zu erreichen. Gerade die GBVs müssen aber bei der Sanierung auch auf die soziale Verträglichkeit achten. Oft ist aber die ideale Vorgehensweise in der technischen Umsetzung unklar. Daher wurden von der Vorarlberger Landesregierung Wohnbauforschungsprojekte initiiert. Ein erstes findet bereit bei der Sanierung der Südtirolersiedlung in Bludenz von der Alpenländische Gemeinnützige WohnbauGmbH statt. „Im Rahmen eines Wohnbauforschungsprojekts sollen die Grundlagen für die bestmögliche Umsetzung geschaffen werden“, informiert Landesrat Marco Tittler. Das Land fördert dieses Projekt, Förderzusagen gibt es auch von der Österreichischen Forschungsförderungsgesellschaft (FFG). Abgewickelt wird über das Energieinstitut Vorarlberg.

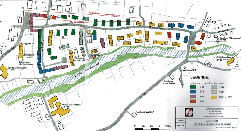
Südtirolersiedlung in Bludenz

Die am westlichen Stadtrand von Bludenz gelegene Südtiroler Siedlung (Arbeitersiedlung) wurde in mehreren Bauetappen beginnend von 1942 bis 1972 errichtet. Ursprünglich wurde die Siedlung in den 1940er Jahren als Wohnquartier für in der Zeit des Nationalsozialismus angesiedelten deutschsprachigen Südtiroler errichtet. In weiterer Folge wurde die Siedlung bis in die 1970er Jahren etappenweise als Wohnquartier für Arbeiterinnen und Arbeiter der ortsansässigen Textilindustrie erweitert. Aktuell umfasst die Südtiroler Siedlung insgesamt 397 Wohnungen mit knapp 24.000 m2 Wohnnutzfläche. Das gesamte Siedlungsgebiet beträgt ca. 62.800 m2. Die gesamte Wohnsiedlung befindet sich im Eigentum der Alpenländische Gemeinnützige WohnbauGmbH. Die Wohneinheiten befinden sich in 77 Häusern, was einem Durchschnitt von 5,16 Wohnungen je Haus entspricht und damit die Kleinteiligkeit der einzelnen Häuser zeigt.

Die Südtiroler Siedlung beherbergt weitgehend Menschen mit geringen Einkommensverhältnissen. Trotz erheblichem Sanierungsbedarfs stehen derzeit nur 12 Wohnungen leer. 

Unter der Federführung des Energieinstitutes Vorarlberg wird nun eine klimazielkompatible Mustersanierung von zwei Mehrfamilienhäusern der Südtiroler Siedlung begonnen. Der historische Kern wurde vom Wohnbauförderungsbeirat als „erhaltenswert“ im Sinne der Wohnhaussanierungsrichtlinie eingestuft. Die Sanierung und eine allfällige gleichzeitige moderate Nachverdichtung soll sensibel durchgeführt werden. Ziel ist ein umfassendes städtebauliches Modernisierungskonzept für die städtischen Infrastrukturen und des Grün- und Landschaftsraumes umzusetzen. Weitere Forschungsprojekte zu Sanierungen sind bereits in Planung.{cwgallery}